Built by concrete producers, for concrete producers

Products

From cloud-connected mixers to high-output wet batch plants and rugged cement silos, Concrete Genius delivers smarter, faster, and more reliable production.

Concrete Genius Products
OMNI Mixer side profile

OMNI Mixer

Next-gen volumetric mixer with precise dosing, 7-stage auger, and full telematics via Concrete CloudOps™.

Up to 60 m³/hr (unlock 100 m³/hr)

View OMNI Mixer
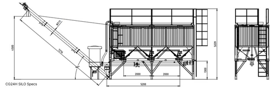
CG24H horizontal silo schema

Cement Silos

Horizontal and vertical silos from 24.5 m³ to 99 m³ with integrated conveyors, dust collection, and transport-ready design.

CG24H • CG27HM • CG53H • CG50V • CG100V

View Silo Models
Genius Batch PRO mobile wet batch plant

Genius Batch PRO

Mobile wet batch plant: 200 yd³/hr with 1–2 hr setup, integrated CloudOps™ for dispatching, calibration, GPS tracking, and paperless tickets.

High capacity • Rapid setup

View Genius Batch PRO
ABOUT US

Building Better Concrete™

Concrete Genius is an industry innovator based in Alberta, Canada — developing advanced, cloud-connected batching systems and sustainable technologies that redefine on-site concrete production.

Learn More
Request Pricing